Description
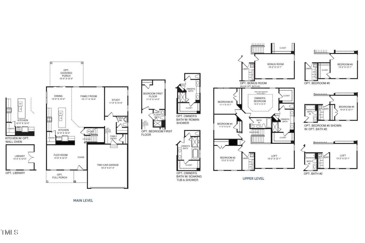
To be built. Discover the Lehigh at Highland Ridge in Willow Spring, NC. This open-concept design features a spacious living room and kitchen, perfect for hosting gatherings or enjoying a quiet evening at home. The main level also includes a study and a flex room, giving you endless possibilities. Whether you envision a home office, library, or playroom, the Lehigh can bring your ideas to life. Upstairs, you'll find a luxurious primary retreat complete with two walk-in closets and a spacious primary bath. Three additional bedrooms offer plenty of room for everyone. The airy loft provides a bonus entertainment space that everyone will love. Life at Highland Ridge means access to top-rated Wake County schools and convenient proximity to I-540, Route 55, and Route 42, keeping you close to shopping, dining, and everyday essentials. Stop dreaming and start living. Schedule your appointment today!
-
4BEDS
-
0.19ACRES
-
2BATHS
-
11/2 BATHS
-
3,010SQFT
-
$141$/SQFT
School Information
Listing courtesy of Esteem Properties: . © 2026 Doorify MLS, Inc. of North Carolina. All Rights Reserved. Information deemed reliable but not guaranteed.
Description
To be built. Discover the Lehigh at Highland Ridge in Willow Spring, NC. This open-concept design features a spacious living room and kitchen, perfect for hosting gatherings or enjoying a quiet evening at home. The main level also includes a study and a flex room, giving you endless possibilities. Whether you envision a home office, library, or playroom, the Lehigh can bring your ideas to life. Upstairs, you'll find a luxurious primary retreat complete with two walk-in closets and a spacious primary bath. Three additional bedrooms offer plenty of room for everyone. The airy loft provides a bonus entertainment space that everyone will love. Life at Highland Ridge means access to top-rated Wake County schools and convenient proximity to I-540, Route 55, and Route 42, keeping you close to shopping, dining, and everyday essentials. Stop dreaming and start living. Schedule your appointment today!
©2026 Doorify MLS, Inc. of North Carolina. All rights reserved. Brokers make an effort to deliver accurate information, but buyers should independently verify any information on which they will rely in a transaction. The listing broker shall not be responsible for any typographical errors, misinformation, or misprints, and they shall be held totally harmless from any damages arising from reliance upon this data. This data is provided exclusively for consumers’ personal, non-commercial use. Listings marked with an icon are provided courtesy of the Doorify MLS,
Inc. of North Carolina, Internet Data Exchange Database. Data last updated 2026-02-08T11:50:55.307.